Dom na sprzedaż Aleksandrów Łódzki

4 pokoje
91.70 m²
8 451,47 zł/m2
EURE-DS-23
Oblicz ratę kredytu

775 000 zł

Dom na sprzedaż

Szczegóły oferty

Symbol oferty EURE-DS-23
Powierzchnia 91,70 m²
Powierzchnia działki [m2] 208 m²
Liczba pokoi 4
Rodzaj domu szereg środkowy
Standard
Liczba pięter w budynku 1
Stan budynku do wykończenia
Rok budowy 2026

Opis nieruchomości

KUPUJĄCY NIE PŁACI PROWIZJI

Prezentujemy nowoczesne domy jednorodzinne w kameralnym osiedlu, położonym w spokojnej, zielonej okolicy Łodzi. (pomiędzy Aleksandrowem Łódzkim a Łodzią)

To idealne miejsce dla osób, które chcą połączyć komfort życia blisko natury z wygodnym dojazdem do miasta.

Mieszkania sprzedawane w standardzie deweloperskim z możliwością wykończenia pod klucz.

Powierzchnie domów:

• 97 m²

• 92 m²

Działki: od około 208 m² do 808 m²

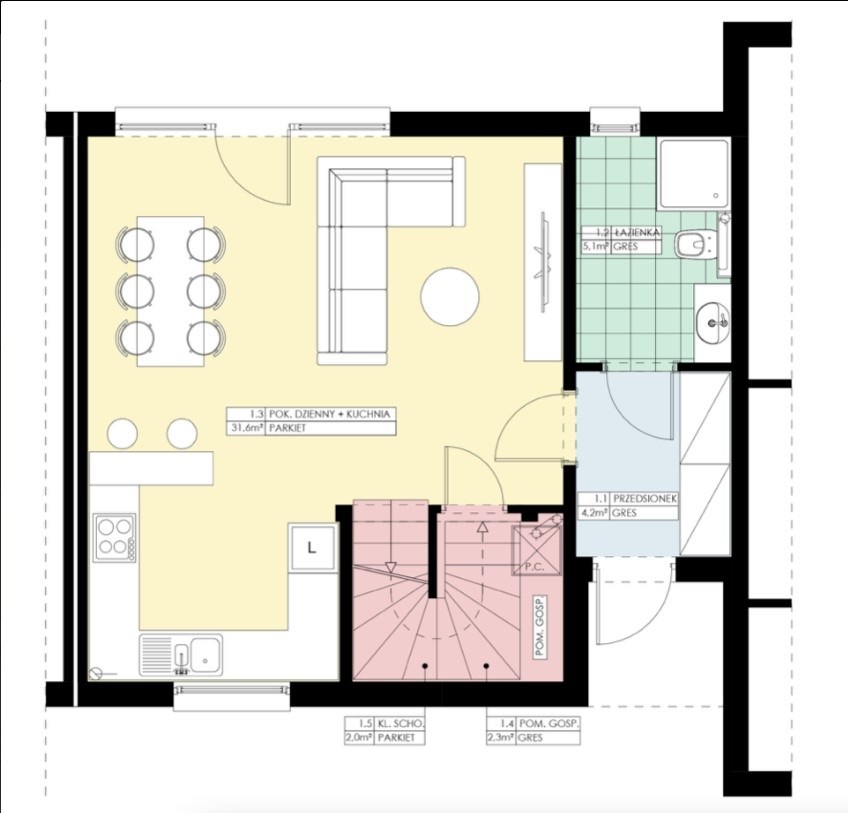
Funkcjonalny układ pomieszczeń

Parter:

  • przestronny salon z aneksem kuchennym i wyjściem na ogród
  • łazienka
  • pomieszczenie gospodarcze

Piętro:

  • trzy sypialnie
  • łazienka
  • dodatkowo dom posiada poddasze stanowiące przestrzeń gospodarczą, idealną do przechowywania.
  • schody wewnętrzne betonowe prefabrykowane.

Standard i instalacje

  • pompa ciepła
  • ogrzewanie podłogowe we wszystkich pomieszczeniach
  • instalacja ciepłej wody użytkowej
  • wentylacja mechaniczna z rekuperacją
  • instalacja fotowoltaiczna • instalacja elektryczna
  • instalacja wodno-kanalizacyjna
  • instalacja alarmowa
  • instalacja teletechniczna
  • instalacja światłowodowa
  • instalacja domofonowa

Wykończenie

  • parter – wylewka betonowa z ogrzewaniem podłogowym
  • piętro – wylewka betonowa z ogrzewaniem podłogowym
  • okna PCV trzyszybowe
  • antywłamaniowe drzwi zewnętrzne
  • drzwi wewnętrzne po stronie nabywcy Teren osiedla
  • droga wewnętrzna z kostki brukowej na całym osiedlu
  • oświetlenie drogi latarniami ulicznymi
  • ogrodzenie między posesjami – panele 3D w kolorze grafitowym
  • ogrodzenie całego osiedla panelami 3D
  • automatyczna brama wjazdowa
  • prywatny, ogrodzony las o powierzchni 2550 m² dostępny wyłącznie dla mieszkańców

To inwestycja zaprojektowana z myślą o komforcie, bezpieczeństwie i niskich kosztach eksploatacji. Nowoczesne rozwiązania techniczne w połączeniu z dostępem do prywatnej zieleni tworzą przestrzeń idealną do życia.

Skontaktuj się, aby sprawdzić dostępność domów i poznać szczegóły oferty!

Kalkulatory

Kalkulator kredytowy

Wysokość raty

PLN
%

Kalkulator kosztów

Podatek od czynności cywilno-prawnych

Taksa notarialna
(opłata notarialna)

Wniosek o wpis do KW

VAT od prowizji
agencji nieruchomości

VAT od taksy notarialnej
(opłaty notarialnej)

Prowizja agencji nieruchomości

Wypisy aktu notarialnego

Razem

Uwaga: mogą wystąpić dodatkowe opłaty za założenie księgi wieczystej oraz ustanowienie hipoteki.

PLN
PLN
PLN
PLN
PLN
PLN
%
PLN

Manager

Proszę wprowadzić poprawne imię i nazwisko
Proszę wprowadzić poprawny numer telefonu
Proszę wprowadzić poprawny adres e-mail
Proszę zaznaczyć wymagane zgody
Rozwiąż równanie:
30 9
Niepoprawny wynik